COLOSSAL
Overview
Features
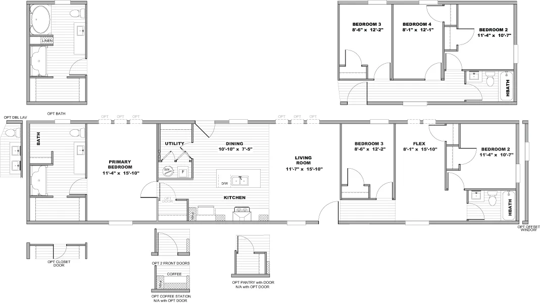
Floor Plan
- IN STOCK
- QUICK DELIVERY
Colossal
4 beds
2 baths
1,400 sq. ft.
Overview
Meet The Colossal — a spacious 4-bedroom, 2-bath home designed for real family living. From movie nights to weekend breakfasts, every space in this home feels open, bright, and ready for life. Highlights: • Large open floor plan connecting the kitchen, dining, and living room so you can stay close to what matters. • Huge kitchen island with plenty of prep space and seating — perfect for family dinners or homework time. • Primary suite tucked away with a roomy walk-in closet and private bath. • Two secondary bedrooms ideal for kids, guests, or a home office. • Smart storage and utility area keep everyday clutter out of sight. • Energy Smart features help lower monthly bills while keeping your home comfortable year-round. This home delivers the space and comfort of a traditional house with the affordability that makes sense for families today. Stop by Freedom Homes of Carencro to walk through The Colossal in person and see why families across Acadiana are calling it home.
Features
Kitchen Island
Open Floor Plan
Split Bedrooms
Utility Room
Floor Plan

Homes built with you in mind
We accept trades!
Find a new home you love? Contact us for more information about our trade-in requirements and to schedule your free trade evaluation.
Learn MoreTake the next step
† Advertised starting sales prices are for the home only. Delivery and installation costs are not included unless otherwise stated. Starting prices shown on this website are subject to change, see your local Home Center for current and specific home and pricing information. Sales price does not include other costs such as taxes, title fees, insurance premiums, filing or recording fees, land or improvements to the land, optional home features, optional delivery or installation services, wheels and axles, community or homeowner association fees, or any other items not shown on your Sales Agreement, Retailer Closing Agreement and related documents (your SA/RCA). If you purchase a home, your SA/RCA will show the details of your purchase. Homes available at the advertised sales price will vary by retailer and state. Artists’ renderings of homes are only representations and actual home may vary. Floor plan dimensions are approximate and based on length and width measurements from exterior wall to exterior wall. We invest in continuous product and process improvement. All home series, floor plans, specifications, dimensions, features, materials, and availability shown on this website are subject to change.




























